Преглед
- Ажурирано на:
- јуни 29, 2025
- 277
Опис
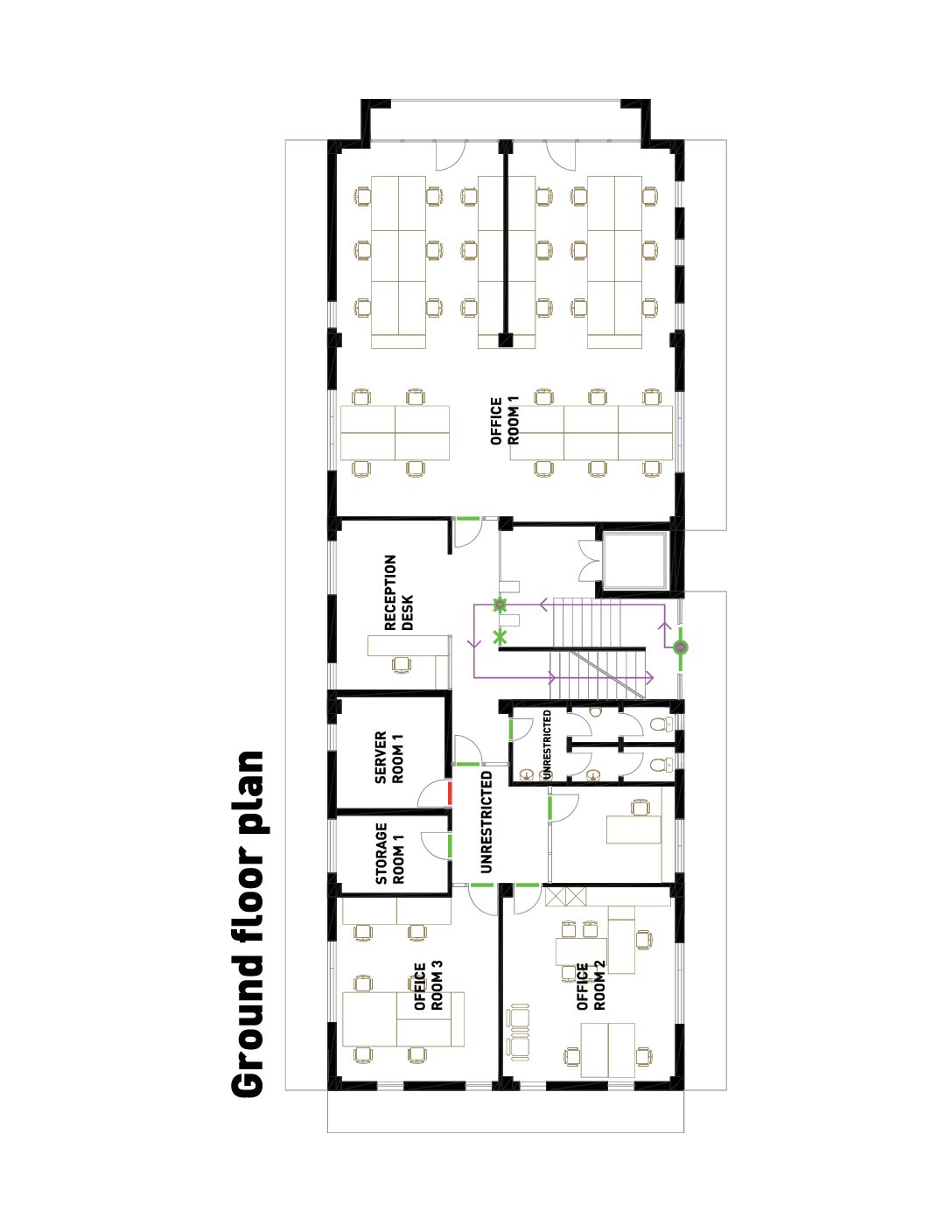
Деловен простор со мирен амбиент покрај вода и зелен простор во деловна зграда.
277 квадратни метри флексибилен распоред, модерен и опремен работен простор со 5 паркинг места вклучени во цената.
- Напреден HVAC систем
- Одделна серверска и машинска соба
- Цел објект е изграден според стандардот ISO27001 за физичка и еколошка безбедност.
- Целосен систем за контрола на пристап со мониторинг и точки на сите врати.
- Комплетен систем за видео надзор кој ги следи сите надворешни и внатрешни простори.
- Алармен систем со контроли за секој кат
- Генератор кој работи целосно независно од мрежата
- Лифт од -1 ниво до врвот на зградата
ID на недвижноста: 32751
Цена: € 12
Големина на недвижноста: 277
Број на паркинг места: Непознато
Kат: Приземје
Нивоа: 1
Опременост: Опремен
Канцеларии: 3
Тоалети: 2
Тераси: Not Available
Безбедност
Алармни Системи
Видеонадзор (CCTV)
Обезбедување 24/7
Простории и Објекти
Конференциска сала
Кујна
Лифт
Сервер соба
Удобности
Интернет
Други Карактеристики
Отворен простор
Рецензии за имот
Треба да се најавите со цел да објавите рецензија
Слични Објави
Се издава
Истакнати







